4 Bedroom House
Park Lane, Ramsden Heath, CM11
Sold STC
£680,000
Guide Price





Overview
Bedroom4
Bath2
Reception3
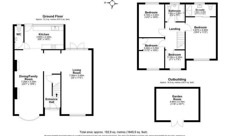
Floor Area152 m²
Property TypeHouse
Property Details
Price£680,000
Property Size152 m²
Bedrooms4
Bathrooms2
Receptions3
Property TypeHouse
StyleSemi Detached
TenureFreehold
Year Built-
StatusSold STC
Address
AddressPark Lane, Ramsden Heath, CM11
PostcodeCM11 1NE
CountryUnited Kingdom
Features & Amenities
Off street2 spaces
Energy Class
Energetic classC
Global Energy Performance Index70 kWh / m²a
Energy performance of the building67
EPC Current Rating70
EPC Potential Rating80
70 kWh / m²a | Energy class C
A
B
C
D
E
F
G
Floor Plans
